인증
중국 China Industrial Furnace Online Market 인증
중국 China Industrial Furnace Online Market 인증
고객 검토
나는 좋은 당신의 제품 아주 말하고 싶습니다. 당신의 제안 전부를 당신을 감사하십시오.

—— Abilioo Cipriano 씨

아주 당신의 전문적인 업무 & 더 높은 표준 품질 통제를 위해, 당신을 알게 아주 행복한 평가하십시오.

—— Johnifere 씨

우수한 질 및 빠른 납품.

—— VICTOR

제가 지금 온라인 채팅 해요

던지는 ccm

던지는 ccm
던지는 ccm 던지는 ccm

큰 이미지 :  던지는 ccm

제품 상세 정보:
원래 장소: Wuxi, 중국 (본토)
브랜드 이름: HAIJUN
모델 번호: R8M 3strands
결제 및 배송 조건:
최소 주문 수량: 2개의 물가
포장 세부 사항: 컨테이너
배달 시간: 2 개월
지불 조건: 티 / T는, 패 / C 조
공급 능력: 30의 물가 년 당 CCM
상세 제품 설명
강조하다:

주조 장비 다이

CCM 던지기

빠른 세부사항:

분사구를 미터로 재서, 주물을 여십시오

간단한 냉각 침대

반경: R8M

물가 수: 3개의 물가

ISO 증명서로

진보된 디자인

안전 작동

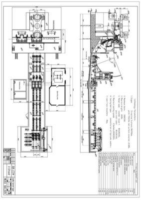
우리는 1에서 가장 낮은 장비 제조 원가를 가진 8개의 물가에 고품질 지속 주조기를 생성해서 좋습니다. 우리는 디자인해서 좋, 사용자의 제강 수용량, 지위 크기, 강철 급료 및 사용자의 분야 조건에 따라 최신 지위 지속 주조기를 제조합니다.

묘사:

1. 기본적인 대기 기술적인 매개변수:

강철 지위 주조기 반경

8m

물가 양

3개의 물가

국자 지원 유형

국자 포탑 또는 국자 차

Tundish 포가

반 문맥, 교차하는 미끄러지는 기능

주물 방법

분사구를 미터로 재서, 주물을 여십시오

이차 냉각

가스와 물의 2 조정 회로 냉각

기계를 곧게 펴는 철수

완전히 5 롤러, 진보적인 곧게 펴기

목록 테이블

사슬 그룹에 의하여 집중되는 드라이브

거짓 막대기

, 각자 적응시키는 거짓 막대기 머리와 더불어 엄밀한

지위 절단

유압 화염 절단기

지위 운반

그룹에 의하여 집중되는 살아있는 롤러 테이블

냉각 은행 유형

간단한 냉각 침대

2. 강철 지위 CCM의 기술적인 공정 설명 그리고 수용량

유도 전기로:

명목상 수용량

40T

꼭지에 꼭지 주기

60min

로 양

3sets

생산 능력

작업 일

330 일/년

매일 로의 평균 수

24/day

생산 능력

400,000t/year

3. 주물 속도, 생산력 및 물가 양

R8m 반경 주조기는 다른 명세, 최대 주물 속도의 주철강 그룹 다음과 같이 입니다 할 수 있습니다:

던지는 부분적인 지역 (mm)

180x180

200×200

220×220

주물 속도 (m/min)

1.6

1.8

2.0

아니다.

지위

크기

주물 속도

매시 산출

(톤)

매일 산출

20hour

(톤)

연간 생산 (300days)

(톤)

1

180×180

1.6m/min

21.98

439

131,700

2

200×200

1.8m/min

27.13

543

162,900

3

220×220

2.0m/min

36.47

729

218,700

계산 결과는 조정의 자신의 실제적인 상황에 따라 생산의 이상적인 국가, 입니다.

강철 급료

주물 급료 (m/min)

효과적인 개악 비율 (ε)

허용가능한 개악 비율 (최대 ε)

똑바른 탄소 강철

1.8~2.5

컴퓨터 테이블을 참고하십시오

0.25

낮은 합금 강철

1.3~2.0

컴퓨터 테이블을 참고하십시오

0.15~0.2

4. CCM 장비 부품표

장비 이름

무게

모형과 명세

단위

1

국자 포탑
가중과 더불어 유압 드라이브,

21T

세트

1

2

Tundish arriage
가는곳마다 다리 유형

12.5×2=25T

세트

2

3

Tundish

6×2=12T

세트

2

4

광재 남비

2.5T

세트

1

5

긴 소매 보호 장치

0.3T

세트

1

5

Tundish 굽기

5.3×2=10.6T

세트

2

6

Tundish 분사구
굽기

세트

2

7

주물 가동
외팔보를 상자에 넣습니다
선반

세트

2

8

200×200 형

세트

3

9

형 덮개

세트

3

10

진동자 장치

세트

3

11

살포 우두머리

세트

3

12

동쪽으로 향하게 한 세그먼트

세트

3

13

엄밀한 거짓 막대기

세트

3

14

거짓 막대기 기억 장치

세트

3

15

곧게 펴기
철수 기계

세트

3

16

곧게 펴기
철수 기계
공통의 기본적인

세트

1

17

가위 접근 롤러

세트

3

18

지위 죄기
장치

세트

3

19

토치 절단
기계

세트

3

20

수집 절단
맨 위 장치
거는 남비

세트

1

21

롤러를 자르기 후에

세트

3

22

수송 롤러 Ⅰ

세트

3

23

수송 롤러 Ⅱ

세트

3

24

넉아웃 롤러

세트

3

25

조정 날의 사면

세트

3

26

이동 강철
기계

6m 길이

세트

3

27

수집 냉각
침대

세트

1

28

피마자 몸 냉각
체계

역류 여과기를 포함하십시오

놓으십시오

1

29

피마자 덮개

세트

1

30

자동적인 길이
체계

세트

3

31

가스 근원 가공업자

거래 계기 가스

세트

1

32

강철 플래트홈

1

Hydrauli의 윤활, 압축 공기를 넣은 체계

1

주인 유압 역

세트

1

2

지위 유압 역

세트

1

3

수압 승강기 뒷문

세트

2

4

집중된 윤활제 윤활 역

세트

6

5

유압 배관

세트

1

6

윤활 배관

세트

1

CCM 3 전기

1

작동 역

2

소프트웨어 꾸러미

3

PLC

세트

3

4

ET-200 PLC
주인 유압 역 ET-200 PLC

세트

1

5

변환장치

W-S 기계 변환장치
(무거운 유형) 힘: 11 kW

세트

3

가위 접근 롤러 변환장치 힘: 4KW

세트

3

던지는 ccm 0

평점 및 리뷰

전체 평점

4.0
이 공급업체에 대한 50개의 리뷰를 기반으로 합니다.

평점 스냅샷

다음은 모든 평점의 분포입니다.
5 별
0%
4 별
0%
3 별
0%
2 별
0%
1 별
0%

전체 리뷰

P
P*D
Saint Vincent and the Grenadines Oct 28.2025
"I love how the Pico 4 handles IPD adjustment. The manual slider is intuitive and stays securely in place. Getting the IPD just right eliminated!
P
P*D
Vatican City State (Holy See) Oct 24.2025
Solid Pattern Quick Dry One Piece Jumpsuit for Women 2023 Customized Logo Gym Sets Solid Pattern Quick Dry One Piece Jumpsuit for Women 2023@
P
Professional Viscose Rayon Fabric Floral Apparel Fabric 118D+20D
United States Oct 23.2025
Solid Pattern Quick Dry One Piece Jumpsuit for Women 2023 Customized Logo Gym Sets
연락처 세부 사항
China Industrial Furnace Online Market

담당자: Mr. Roni

전화 번호: 13825096163

팩스: 86-10-7777777

회사에 직접 문의 보내기 (0 / 3000)