|
Detail produk:
Syarat-syarat pembayaran & pengiriman:
|
| Menyoroti: | die casting baja |
||
|---|---|---|---|
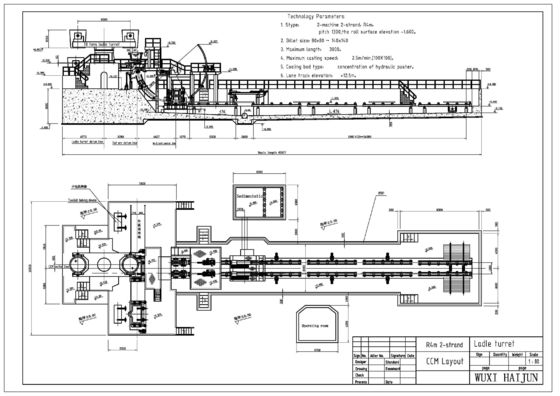
R4M, 2 Strands Baja Casting Machine / Cast Billet, kaku Dummy Bar
spesifikasi
Mesin pengecoran CCMcontinuous
radius: 4-12m
1-8strand
desain canggih
operasi yang aman
Kami dapat menghasilkan kualitas tinggi mesin pengecoran kontinyu dari 1 sampai 8 helai dengan terendah manufaktur peralatan cost.We dapat merancang, memproduksi up-to-date billet mesin pengecoran kontinyu sesuai dengan kapasitas pengguna pembuatan baja, ukuran billet, baja dan kondisi lapangan pengguna.
Deskripsi:
1. Dasar siaga parameter teknis:
Radius mesin pengecoran baja billet | 4m |
kuantitas Strand | 2 helai |
Ladle jenis dukungan | Menara sendok, mobil sendok, gunung sendok |
kereta tundish | Semi-portal, lintas fungsi geser |
metode pengecoran | Metering nozzle, casting terbuka |
pendingin sekunder | Pendingin air, 1 menyesuaikan sirkuit |
Penarikan mesin meluruskan | Benar-benar 5 rol, pelurusan progresif |
meja putar | Berkendara kelompok rantai terpusat |
bar Dummy | Kaku, dengan bar kepala boneka diri beradaptasi |
pemotongan billet | pemotongan pengguna |
menyampaikan billet | Kelompok terpusat meja rol hidup |
Pendingin jenis bank | Tidur pendinginan sederhana |
2. Teknis deskripsi proses dan kapasitas baja billet CCM
Tungku induksi:
Kapasitas nominal | 15T |
Tap-to-tap siklus | 60menit |
kuantitas tungku | 2set |
Kapasitas produksi
Hari kerja | 330 hari / tahun |
Jumlah rata-rata tungku harian | 24 / hari |
Kapasitas produksi | 100,000t / tahun |
3. kecepatan Casting, produktivitas dan kuantitas strand
R4M mesin radius casting dapat melemparkan kelompok baja spesifikasi yang berbeda, kecepatan penuangan maksimum adalah sebagai berikut:
Casting luas penampang (mm) | 80 × 80 | 100 × 100 | 120 × 120 |
Kecepatan penuangan (m / min) | 3.0 | 2.8 | 2.6 |
TIDAK. | jabatan ukuran | kecepatan Casting | Output per jam (ton) | output harian 24 jam (ton) | Output tahunan (330days) (ton) |
1 | 80 × 80 | 3.0m / min | 7.42 | 178 | 58.766 |
2 | 100 × 100 | 2.8m / min | 10.81 | 259. | 85.615 |
3 | 120 × 120 | 2.6m / min | 15,69 | 377 | 124.266 |
Hasil perhitungan adalah keadaan ideal produksi, silahkan sesuai dengan situasi aktual sendiri penyesuaian.
Kualitas baja | Casting grade (m / min) | Tingkat deformasi efektif (ε) | Diijinkan tingkat deformasi (ε maks) |
Baja karbon lurus | 1,8 ~ 2,5 | Silakan lihat tabel komputasi | 0.25 |
Baja paduan rendah | 1.3 ~ 2.0 | Silakan lihat tabel komputasi | 0,15 ~ 0,2 |
4. CCM daftar bagian peralatan
Tidak. | nama mesin | Berat | Satuan | Kuantitas | |
ⅰ | tubuh perlengkapan | ||||
1 | mobil sendok | 5T × 2 = 10T | set | 2 | |
2 | kereta tundish | 2T × 2 = 4T | set | 2 | |
3 | tundish | 1.4T × 2 = 2.8T | PEC | 2 | |
4 | Cetakan 100 × 100 | 0.53 × 2 = 1.06T | set | 2 | |
5 | Cetakan rol | 0.01 × 2 = 0.02T | set | 2 | |
6 | penutup Mould | 0.1T × 2 = 0.2T | set | 2 | |
7 | Cetakan osilator | 1.5T × 2 = 3T | set | 2 | |
8 | Tabung semprot pendingin sekunder | 0.5T × 2 = 1T | set | 2 | |
9 | Panduan pendingin sekunder bagian gulungan | 0.5T × 2 = 1T | set | 2 | |
10 | Pendingin sekunder laut sistem steam menguras | 1.1T | set | 1 | |
11 | Penarikan dan meluruskan mesin | 6T × 2 = 12T | set | 2 | |
12 | bar Dummy | 0.9T × 2 = 1.8T | set | 2 | |
13 | Perangkat penyimpanan Dummy bar | 0.7T × 2 = 1.4T | set | 2 | |
14 | Meja roll sebelum pemotongan | 1.5T × 2 = 3T | set | 2 | |
15 | Tidur pendinginan sederhana | 1.2T | set | 1 | |
16 | Kepala billet dan memotong sistem pengumpulan slag | 0.5T | set | 1 | |
17 | roll jalan | 1.5T × 2 = 3T | set | 2 | |
18 | Billet out-akan rol | 1,5 × 2 = 3T | set | 3 | |
19 | Baja mesin pergeseran lateral yang | 3T | set | 1 | |
20 | Mesin pemotong api | 1T × 2 = 2T | set | 2 | |
21 | Sistem stasiun hidrolik | 1.6T | set | 1 | |
22 | Stasiun pendingin air | 1.6T | set | 1 | |
23 | Platform baja | 45T | 1 | ||
ⅱ | Tiga Sistem Listrik | ||||
1 | Peralatan kontrol listrik | set | 1 | ||
2 | adegan meteran | set | 1 | ||
3 | Sistem komputer | set | 1 | ||
ⅲ | bahan instalasi | ||||
1 | Materi sistem instrumen listrik | 1T | Set | 1 | |
2 | Materi sistem pipa hidrolik | 1T | Set | 1 | |
3 | Pendingin materi sistem air | 1T | Set | 1 | |
ⅳ | peralatan Offline | ||||
1 | Cetakan repairtable | Set | 1 | ||
2 | Cetakan dukungan berdiri | Set | 1 | ||
3 | Pasangan arc Template | Pasangan | 2 | ||

Kontak Person: Mr. Roni
Tel: 13825096163
Faks: 86-10-7777777
Penilaian Keseluruhan
Cuplikan Penilaian
Berikut adalah distribusi dari semua peringkatSemua Ulasan