|
Ürün ayrıntıları:
Ödeme & teslimat koşulları:
|
| Vurgulamak: | Basınçlı döküm |
||
|---|---|---|---|
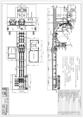
Hidrolik / Alev Kesme CCM Makinesi, Çapraz Kayma İşlevli, R8M 3 Telli
Hızlı Detay:
CCM sürekli döküm makinesi
Yarıçapı: 8m
Tel sayısı: 3 tel
ISO belgesi ile
En düşük ekipman imalat maliyetiyle 1'den 8 bükümlü yüksek kaliteli sürekli döküm makineleri üretebiliriz. Kullanıcının çelik üretim kapasitesine, kütük ebatına, çelik kalitelerine ve kütük ebatlarına uygun olarak güncel kütük sürekli döküm makinesini tasarlayabilir, üretebiliriz. Kullanıcının alan koşulları.
Açıklama:
1. Temel bekleme teknik parametreleri:
Çelik kütük döküm makinesi yarıçapı | 8 m |
Tel sayısı | 3 tel |
Kepçe destek tipi | Kepçe tareti veya Kepçe arabası |
Tandiş arabası | Yarı portal, çapraz kayma fonksiyonu |
Döküm yöntemi | Ölçme başlığı, açık döküm |
İkincil soğutma | Gaz ve su soğutma, 2 ayar devresi |
Çekme doğrultma makinesi | Tamamen 5 merdane, aşamalı doğrultma |
Rulo masa | Zincir grubu merkezi sürücü |
Kukla çubuk | Sert, kendi kendini uyarlayan kukla çubuk başlı |
Kütük kesme | Hidrolik veya alev kesme makinası |
Kütük taşıma | Grup merkezli canlı rulo masa |
Soğutma bankı tipi | Basit soğutma yatağı |
2. Teknik süreç tanımı ve çelik kütük CCM kapasitesi
İndüksiyon ocağı:
Nominal kapasite | 40T |
Dokundurmak için dokunma döngüsü | 60 dakika |
Fırın miktarı | 3 set |
Üretim kapasitesi
İş günleri | 330 gün / yıl |
Ortalama günlük fırın sayısı | 24 / gün |
Üretim kapasitesi | 400.000 ton / yıl |
3. Döküm hızı, verimlilik ve iplik miktarı
R8m yarıçaplı döküm makinesi, farklı özelliklere sahip çelik gruplar dökebilir, maksimum döküm hızı aşağıdaki gibidir:
Döküm kesit alanı (mm) | 180x180 | 200 × 200 | 220 × 220 |
Döküm hızı (m / dak) | 1,6 | 1.8 | 2.0 |
YOK HAYIR. | Kütük boyut | Döküm hızı | Saatlik çıktı (Ton) | Günlük çıktı 20saat (Ton) | Yıllık çıktı (300 gün) (Ton) |
1 | 180 × 180 | 1,6 m / dak | 21.98 | 439 | 131.700 |
2 | 200 × 200 | 1.8m / dak | 27.13 | 543 | 162.900 |
3 | 220 × 220 | 2.0m / dakika | 36.47 | 729 | 218.700 |
Hesaplama sonuçları, üretimin ideal halidir, lütfen kendi ayarlama durumuna göre.
Çelik sınıfı | Döküm kalitesi (m / dak) | Etkili deformasyon hızı (ε) | İzin verilen deformasyon oranı (ε max) |
Düz karbonlu çelik | 1.8 ~ 2.5 | Lütfen hesaplama tablosuna bakınız. | 0,25 |
Düşük alaşımlı çelik | 1.3 ~ 2.0 | Lütfen hesaplama tablosuna bakınız. | 0.15-0.2 |

4. CCM ekipman parça listesi
№ | Ekipman adı | Ağırlık | Model ve şartname | Birim | |||
1 | Kepçe kulesi | 21T | Ayarlamak | 1 | |||
2 | Tundiş bayramı | 12.5 × 2 = 25T | Ayarlamak | 2 | |||
3 | Tundiş | 6 × 2 = 12T | Ayarlamak | 2 | |||
4 | Cüruf Potu | 2.5T | Ayarlamak | 1 | |||
5 | Uzun kollu koruma cihazı | 0.3T | Ayarlamak | 1 | |||
5 | Tundiş pişirme | 5.3 × 2 = 10.6T | Ayarlamak | 2 | |||
6 | Tundiş başlığı | Ayarlamak | 2 | ||||
7 | Döküm işlemi | Ayarlamak | 2 | ||||
8 | 200 × 200 Kalıp | Ayarlamak | 3 | ||||
9 | Kalıp kapağı | Ayarlamak | 3 | ||||
10 | Osilatör cihazı | Ayarlamak | 3 | ||||
11 | Sprey başlığı | Ayarlamak | 3 | ||||
12 | Yönlendirilmiş segment | Ayarlamak | 3 | ||||
13 | Sert gömme bar | Ayarlamak | 3 | ||||
14 | Kukla çubuk depolama aygıtı | Ayarlamak | 3 | ||||
15 | Doğrultma ve | Ayarlamak | 3 | ||||
16 | Doğrultma ve | Ayarlamak | 1 | ||||
17 | Makaslar yaklaşma silindiri | Ayarlamak | 3 | ||||
18 | Kütük sıkıştırma | Ayarlamak | 3 | ||||
19 | Meşale kesme | Ayarlamak | 3 | ||||
20 | Koleksiyon kesme | Ayarlamak | 1 | ||||
21 | Kesme makarasından sonra | Ayarlamak | 3 | ||||
22 | Nakil merdanesi I | Ayarlamak | 3 | ||||
23 | Taşıma silindiri II | Ayarlamak | 3 | ||||
24 | Nakavt silindiri | Ayarlamak | 3 | ||||
25 | Sabit çerçeve | Ayarlamak | 3 | ||||
26 | Çelik değiştirme | 6 m uzunluk | Ayarlamak | 3 | |||
27 | Koleksiyon soğutma | Ayarlamak | 1 | ||||
28 | Caster gövde soğutma | Bir ters yıkama filtresi | Ayarlamak | 1 | |||
29 | Teker kapağı | Ayarlamak | 1 | ||||
30 | Otomatik Uzunluk | Ayarlamak | 3 | ||||
31 | Gaz kaynak işlemcisi | Alet gazı alımı | Ayarlamak | 1 | |||
32 | Çelik platform | 1 | |||||
Ⅱ | Hidrolik, Yağlama, pnömatik sistem | ||||||
1 | Ana hidrolik istasyonu | Ayarlamak | 1 | ||||
2 | Kütük hidrolik istasyonu | Ayarlamak | 1 | ||||
3 | Hidrolik asansör bagaj kapağı | Ayarlamak | 2 | ||||
4 | Merkezi yağlama yağlama istasyonu | Ayarlamak | 6 | ||||
5 | Hidrolik borular | Ayarlamak | 1 | ||||
6 | Yağlama boruları | Ayarlamak | 1 | ||||
Ⅲ | CCM 3-Elektrik | ||||||
1 | Işletim istasyonu | ||||||
2 | Yazılım paketi | ||||||
3 | PLC | Ayarlamak | 3 | ||||
4 | ET-200 PLC | Ayarlamak | 1 | ||||
5 | İnvertör | ||||||
① | WS makine invertörü | Ayarlamak | 3 | ||||
② | Makaslar makaralı invertör gücü yaklaşıyor: 4KW | Ayarlamak | 3 | ||||

İlgili kişi: Mr. Roni
Tel: 13825096163
Faks: 86-10-7777777
Genel Değerlendirme
Derecelendirme Anlık Görüntüsü
Aşağıdaki tüm oyların dağılımıdırTüm İncelemeler