Αρχική Σελίδα Προϊόνταccm μηχανή

Μηχανή συνεχών ρίψεων

Πιστοποίηση
Κίνα China Industrial Furnace Online Market Πιστοποιήσεις
Κίνα China Industrial Furnace Online Market Πιστοποιήσεις
Αναθεωρήσεις πελατών
Θέλω να πω ότι τα προϊόντα σας πολύ καλά. Σας ευχαριστώ για όλη την πρότασή σας.

—— Ο κ. Abílio Cipriano

Πολύ εκτιμήστε για την επαγγελματική υπηρεσία & τα υψηλότερα πρότυπά σας - ποιοτικός έλεγχος, πολύ ευτυχής να σας ξέρει.

—— Ο κ. Johnifere

Άριστη ποιότητα και γρήγορη παράδοση.

—— VICTOR

Είμαι Online Chat Now

Μηχανή συνεχών ρίψεων

Μηχανή συνεχών ρίψεων
Μηχανή συνεχών ρίψεων Μηχανή συνεχών ρίψεων

Μεγάλες Εικόνας :  Μηχανή συνεχών ρίψεων

Λεπτομέρειες:
Τόπος καταγωγής: Wuxi, Κίνα (ηπειρωτική χώρα)
Μάρκα: HAIJUN
Αριθμό μοντέλου: R8M 3strands
Πληρωμής & Αποστολής Όροι:
Ποσότητα παραγγελίας min: 3 σκέλη
Συσκευασία λεπτομέρειες: ΔΟΧΕΙΟ
Χρόνος παράδοσης: 2 ΜΉΝΕΣ
Όροι πληρωμής: Μ / Τ, L / C
Δυνατότητα προσφοράς: 30 σκέλη CCM το χρόνο
Λεπτομερής Περιγραφή Προϊόντος
Επισημαίνω:

χυτήριο υπό πίεση

Μηχανή συνεχών ρίψεων

Γρήγορη λεπτομέρεια:

ακτίνα: R8M

Αριθμός σκελών: 3 σκέλη

με την πιστοποίηση του ISO

προηγμένο σχέδιο

ασφαλής λειτουργία

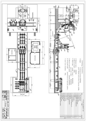
Μπορούμε να παραγάγουμε υψηλό - μηχανές ποιοτικών συνεχών ρίψεων από 1 έως 8 σκέλη με το χαμηλότερο κόστος παραγωγής εξοπλισμού. Μπορούμε να σχεδιάσουμε, να κατασκευάσουμε την ενημερωμένη μηχανή συνεχών ρίψεων καταλυμάτων σύμφωνα με τη χαλυβουργική ικανότητα του χρήστη, το μέγεθος καταλυμάτων, τους βαθμούς χάλυβα και τους όρους τομέων του χρήστη.

Περιγραφή:

1. Βασικές εφεδρικές τεχνικές παράμετροι:

Ακτίνα μηχανών ρίψης καταλυμάτων χάλυβα

8m

Ποσότητα σκελών

3 σκέλη

Τύπος υποστήριξης κουταλών

Πυργίσκος κουταλών ή αυτοκίνητο κουταλών

Tundish μεταφορά

Ημι-πύλη, διαγώνια λειτουργία ολίσθησης

Μέθοδος ρίψης

Μετρώντας ακροφύσιο, ανοικτή ρίψη

Δευτεροβάθμια ψύξη

Αέριο και υδρόψυξη, κύκλωμα ρύθμισης 2

Απόσυρση που ισιώνει τη μηχανή

Συνολικά 5 κύλινδρος, προοδευτική αποκατάσταση

Πίνακας ρόλων

Η ομάδα αλυσίδων συγκέντρωσε την κίνηση

Πλαστός φραγμός

Άκαμπτος, με το self-adapting κεφάλι πλαστών φραγμών

Κοπή καταλυμάτων

Υδραυλική ή τέμνουσα μηχανή φλογών

Μεταβίβαση καταλυμάτων

Συγκεντρωμένος ομάδα ζωντανός πίνακας κυλίνδρων

Δροσίζοντας τύπος τραπεζών

Απλό δροσίζοντας κρεβάτι

2. Τεχνικές περιγραφή διαδικασίας και ικανότητα του καταλύματος χάλυβα CCM

Φούρνος επαγωγής:

Ονομαστική ικανότητα

40T

Tap-to-tap κύκλος

60min

Ποσότητα φούρνων

3sets

Ικανότητα παραγωγής

Εργάσιμες ημέρες

330 ημέρες/έτος

Μέσος αριθμός καθημερινού φούρνου

24/day

Ικανότητα παραγωγής

400,000t/year

3. Ταχύτητα ρίψης, παραγωγικότητα και ποσότητα σκελών

R8m η πετώντας μηχανή ακτίνας μπορεί ομάδες χυτοχάλυβα διαφορετικών προδιαγραφών, η μέγιστη ταχύτητα ρίψης είναι η ακόλουθη:

Τμηματική περιοχή ρίψης (χιλ.)

180x180

200×200

220×220

Ταχύτητα ρίψης (m/min)

1.6

1.8

2.0

Αριθ.

Κατάλυμα

μέγεθος

Ταχύτητα ρίψης

ωριαία παραγωγή

(τόνοι)

Καθημερινή παραγωγή

20hour

(τόνοι)

Ετήσια παραγωγή (300days)

(τόνοι)

1

180×180

1.6m/min

21.98

439

131.700

2

200×200

1.8m/min

27.13

543

162.900

3

220×220

2.0m/min

36.47

729

218.700

Τα αποτελέσματα υπολογισμού είναι η ιδανική κατάσταση της παραγωγής, παρακαλώ σύμφωνα με την πραγματική κατάσταση της ρύθμισης.

Βαθμός χάλυβα

Βαθμός ρίψης (m/min)

Αποτελεσματικό ποσοστό παραμόρφωσης (ε)

Επιτρεπόμενο ποσοστό παραμόρφωσης (εανώτατο)

Ευθύς χάλυβας άνθρακα

1.8~2.5

Παρακαλώ αναφερθείτε στον υπολογιστικό πίνακα

0.25

Χαμηλός χάλυβας κραμάτων

1.3~2.0

Παρακαλώ αναφερθείτε στον υπολογιστικό πίνακα

0.15~0.2

4. CCM κατάλογος μερών εξοπλισμού

Όνομα εξοπλισμού

Βάρος

Πρότυπο και προδιαγραφή

Μονάδα

1

Πυργίσκος κουταλών
Υδραυλική κίνηση, με τη στάθμιση

21T

σύνολο

1

2

Tundish arriage
Υψηλός και χαμηλός τύπος ποδιών

12.5×2=25T

σύνολο

2

3

Tundish

6×2=12T

σύνολο

2

4

Δοχείο σκουριάς

2.5T

σύνολο

1

5

Μακριά συσκευή προστασίας μανικιών

0.3T

σύνολο

1

5

Tundish ψήσιμο

5.3×2=10.6T

σύνολο

2

6

Tundish ακροφύσιο
ψήσιμο

σύνολο

2

7

Λειτουργία ρίψεων
cantilever κιβωτίων
ράφι

σύνολο

2

8

200×200 φόρμα

σύνολο

3

9

Κάλυψη φορμών

σύνολο

3

10

Συσκευή ταλαντωτών

σύνολο

3

11

Επιγραφή ψεκασμού

σύνολο

3

12

Προσανατολισμένο τμήμα

σύνολο

3

13

Άκαμπτος πλαστός φραγμός

σύνολο

3

14

Συσκευή αποθήκευσης πλαστών φραγμών

σύνολο

3

15

Αποκατάσταση και
μηχανή απόσυρσης

σύνολο

3

16

Αποκατάσταση και
μηχανή απόσυρσης
κοινής βάσης

σύνολο

1

17

Κύλινδρος προσέγγισης ψαλίδων

σύνολο

3

18

Στερέωση καταλυμάτων
συσκευή

σύνολο

3

19

Κοπή φανών
μηχανή

σύνολο

3

20

Κοπή συλλογής
επικεφαλής συσκευή και
κρεμώντας δοχείο

σύνολο

1

21

Μετά από τον τέμνοντα κύλινδρο

σύνολο

3

22

Κύλινδρος μεταφορών Ⅰ

σύνολο

3

23

Κύλινδρος μεταφορών Ⅱ

σύνολο

3

24

Knockout κύλινδρος

σύνολο

3

25

Σταθερό bezel

σύνολο

3

26

Μετατόπιση του χάλυβα
μηχανή

μήκος 6m

σύνολο

3

27

Ψύξη συλλογής
κρεβάτι

σύνολο

1

28

Ψύξη σωμάτων τροχίσκων
σύστημα

περιλάβετε ένα φίλτρο παλίνδρομου κύματος

σύνολο

1

29

Κάλυψη τροχίσκων

σύνολο

1

30

Αυτόματο μήκος
Σύστημα

σύνολο

3

31

Επεξεργαστής πηγής αερίου

αέριο οργάνων διαπραγμάτευσης

σύνολο

1

32

Πλατφόρμα χάλυβα

1

Hydrauli, λίπανση, αεροκίνητο σύστημα

1

Υδραυλικός σταθμός οικοδεσποτών

σύνολο

1

2

Ο υδραυλικός σταθμός καταλυμάτων

σύνολο

1

3

Υδραυλικό tailgate ανελκυστήρων

σύνολο

2

4

Συγκεντρωμένος σταθμός λίπανσης λιπών

σύνολο

6

5

Υδραυλική διοχέτευση με σωλήνες

σύνολο

1

6

Διοχέτευση με σωλήνες λίπανσης

σύνολο

1

CCM 3-ηλεκτρικός

1

Λειτουργών σταθμός

2

Πακέτο λογισμικού

3

PLC

σύνολο

3

4

ET-200 PLC
Υδραυλικός σταθμός et-200 PLC οικοδεσποτών

σύνολο

1

5

Αναστροφέας

Αναστροφέας μηχανών της WS
(βαρύς τύπος) δύναμη: 11 KW

σύνολο

3

Δύναμη αναστροφέων κυλίνδρων προσέγγισης ψαλίδων: 4KW

σύνολο

3

Μηχανή συνεχών ρίψεων 0

Αξιολογήσεις & Κριτικές

Συνολική Αξιολόγηση

4.0
Βασισμένο σε 50 αξιολογήσεις για αυτόν τον προμηθευτή

Στιγμιότυπο Αξιολόγησης

Ακολουθεί η κατανομή όλων των αξιολογήσεων
5 αστέρια
0%
4 αστέρια
0%
3 αστέρια
0%
2 αστέρια
0%
1 αστέρια
0%

Όλες οι Κριτικές

P
Professional Viscose Rayon Fabric Floral Apparel Fabric 118D+20D
Azerbaijan Oct 23.2025
Solid Pattern Quick Dry One Piece Jumpsuit for Women 2023 Customized Logo Gym Sets
P
Professional Viscose Rayon Fabric Floral Apparel Fabric 118D+20D
Brazil Oct 23.2025
"The Pico 4's visual clarity is fantastic once you dial in the IPD correctly. The manual adjustment is smooth, and finding that sweet spot makes all the difference. No more eye strain during long sessions. Highly recommend taking the time to set it up properly!""The Pico 4's visual clarity is fantastic once you dial in the IPD correctly. The manual adjustment is smooth, and finding that sweet spot makes all the difference. No more eye strain during long sessions. Highly recommend taking the time to set it up properly!""The Pico 4's visual clarity is fantastic once you dial in the IPD correctly. The manual adjustment is smooth, and finding that sweet spot makes all the difference. No more eye strain during long sessions. Highly recommend taking the time to set it up properly!""The Pico 4's visual clarity is fantastic once you dial in the IPD correctly. The manual adjustment is smooth, and finding that sweet spot makes all the difference. No more eye strain during long sessions. Highly r
P
Professional Viscose Rayon Fabric Floral Apparel Fabric 118D+20D
Brazil Oct 21.2025
"Great value for money. Works perfectly and arrived quickly. Will definitely buy again."
Στοιχεία επικοινωνίας
China Industrial Furnace Online Market

Υπεύθυνος Επικοινωνίας: Mr. Roni

Τηλ.:: 13825096163

Φαξ: 86-10-7777777

Στείλετε το ερώτημά σας απευθείας σε εμάς (0 / 3000)