|
उत्पाद विवरण:
भुगतान & नौवहन नियमों:
|
| प्रमुखता देना: | दबाव मरने के कास्टिंग |
||
|---|---|---|---|
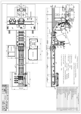
R8M 3S सीसीएम मशीन, बिलेट सतत कास्टिंग मशीन
त्वरित विस्तार से:
हम डिजाइन कर सकते हैं सबसे कम उपकरण विनिर्माण cost.We के साथ 1 से 8 किस्में से उच्च गुणवत्ता निरंतर ढलाई मशीनों का उत्पादन कर सकते हैं, उपयोगकर्ता के इस्पात निर्माण क्षमता, फौजों आकार, स्टील ग्रेड और के अनुसार अप-टू-डेट फौजों निरंतर ढलाई मशीन का निर्माण उपयोगकर्ता के क्षेत्र की स्थिति।
विवरण:
1. बेसिक स्टैंडबाई तकनीकी मानकों:
स्टील बिलेट कास्टिंग मशीन त्रिज्या | 8m |
कतरा मात्रा | 3 किस्में |
करछुल समर्थन प्रकार | करछुल बुर्ज या करछुल कार |
tundish गाड़ी | अर्द्ध पोर्टल, पार फिसलने समारोह |
कास्टिंग विधि | पैमाइश नोक, खुले कास्टिंग |
माध्यमिक ठंडा | गैस और पानी ठंडा, 2 समायोजन सर्किट |
निकासी सीधे मशीन | पूरी तरह से 5 रोलर, प्रगतिशील सीधे |
रोल तालिका | चेन समूह केंद्रीकृत ड्राइव |
डमी बार | , कठोर आत्म आदत डाल डमी बार सिर के साथ |
बिलेट काटने | हाइड्रोलिक या लौ काटने की मशीन |
बिलेट का संदेश | समूह केंद्रीकृत लाइव रोलर तालिका |
शीतलक बैंक प्रकार | सरल ठंडा बिस्तर |
2। तकनीकी प्रक्रिया का विवरण और स्टील बिलेट सीसीएम की क्षमता
प्रेरण भट्टी:
नाममात्र क्षमता | 40T |
नल-नल चक्र | 60min |
फर्नेस मात्रा | 3 सेट्स |
उत्पादन क्षमता
कार्य दिवस | 330 दिन / वर्ष |
दैनिक भट्ठी की औसत संख्या | 24 / दिन |
उत्पादन क्षमता | 400,000t / वर्ष |
3. कास्टिंग गति, उत्पादकता और कतरा मात्रा
R8m त्रिज्या कास्टिंग मशीन अलग अलग विशेषताओं के इस्पात समूहों डाल सकते हैं, इस प्रकार के रूप में अधिकतम गति कास्टिंग है:
अनुभागीय क्षेत्र कास्टिंग (मिमी) | 180x180 | 200 × 200 | 220 × 220 |
कास्टिंग गति (एम / मिनट) | 1.6 | 1.8 | 2.0 |
नहीं। | फौजों के घर आकार | कास्टिंग स्पीड | प्रति घंटा उत्पादन (टन) | दैनिक उत्पादन 20hour (टन) | वार्षिक उत्पादन (300days) (टन) |
1 | 180 × 180 | 1.6 m / मिनट | 21.98 | 439 | 131700 |
2 | 200 × 200 | 1.8 एम / मिनट | 27.13 | 543 | 162,900 |
3 | 220 × 220 | 2.0m / मिनट | 36.47 | 729 | 218,700 |
गणना के परिणाम उत्पादन का आदर्श राज्य, समायोजन की ही वास्तविक स्थिति के अनुसार कृपया है।
इस्पात श्रेणी | कास्टिंग ग्रेड (एम / मिनट) | प्रभावी विरूपण दर (ε) | स्वीकार्य विरूपण दर (ε अधिकतम) |
सीधे कार्बन स्टील | 1.8 ~ 2.5 | कम्प्यूटेशनल तालिका देखें | 0.25 |
कम मिश्र धातु स्टील | 1.3 ~ 2.0 | कम्प्यूटेशनल तालिका देखें | 0.15 ~ 0.2 |
4. सीसीएम उपकरण भागों की सूची
№ | उपकरण का नाम | वजन | मॉडल और विनिर्देश | इकाई | |||
1 | करछुल बुर्ज | 21T | सेट | 1 | |||
2 | tundish arriage | 12.5 × 2 = 25T | सेट | 2 | |||
3 | tundish | 6 × 2 = 12T | सेट | 2 | |||
4 | लावा पॉट | 2.5T | सेट | 1 | |||
5 | लंबी आस्तीन सुरक्षा उपकरण | 0.3T | सेट | 1 | |||
5 | tundish पाक | 5.3 × 2 = 10.6T | सेट | 2 | |||
6 | tundish नोक | सेट | 2 | ||||
7 | कास्टिंग ऑपरेशन | सेट | 2 | ||||
8 | 200 × 200 ढालना | सेट | 3 | ||||
9 | ढालना कवर | सेट | 3 | ||||
10 | थरथरानवाला डिवाइस | सेट | 3 | ||||
1 1 | स्प्रे हैडर | सेट | 3 | ||||
12 | उन्मुखी खंड | सेट | 3 | ||||
13 | कठोर डमी बार | सेट | 3 | ||||
14 | डमी बार भंडारण युक्ति | सेट | 3 | ||||
15 | सीधे और | सेट | 3 | ||||
16 | सीधे और | सेट | 1 | ||||
17 | कैंची रोलर दृष्टिकोण | सेट | 3 | ||||
18 | बिलेट clamping | सेट | 3 | ||||
19 | मशाल को काटने | सेट | 3 | ||||
20 | संग्रह काटने | सेट | 1 | ||||
21 | रोलर काटने के बाद | सेट | 3 | ||||
22 | परिवहन rollerⅠ | सेट | 3 | ||||
23 | परिवहन rollerⅡ | सेट | 3 | ||||
24 | नॉकआउट रोलर | सेट | 3 | ||||
25 | निश्चित पेनल | सेट | 3 | ||||
26 | स्थानांतरण स्टील | 6 लंबाई | सेट | 3 | |||
27 | संग्रह ठंडा | सेट | 1 | ||||
28 | केस्टर शरीर ठंडा | एक लहर फिल्टर शामिल | सेट | 1 | |||
29 | केस्टर कवर | सेट | 1 | ||||
30 | स्वत: लंबाई | सेट | 3 | ||||
31 | गैस स्रोत प्रोसेसर | सौदा साधन गैस | सेट | 1 | |||
32 | स्टील मंच | 1 | |||||
ⅱ | Hydrauli, स्नेहन, वायवीय प्रणाली | ||||||
1 | हाइड्रोलिक स्टेशन की मेजबानी | सेट | 1 | ||||
2 | फौजों हाइड्रोलिक स्टेशन | सेट | 1 | ||||
3 | हाइड्रोलिक लिफ्ट tailgate | सेट | 2 | ||||
4 | केन्द्रीकृत तेल स्नेहन स्टेशन | सेट | 6 | ||||
5 | हाइड्रोलिक पाइपिंग | सेट | 1 | ||||
6 | स्नेहन पाइपिंग | सेट | 1 | ||||
ⅲ | सीसीएम 3-इलेक्ट्रिक | ||||||
1 | ऑपरेटिंग स्टेशन | ||||||
2 | सॉफ़्टवेयर पैकेज | ||||||
3 | पीएलसी | सेट | 3 | ||||
4 | ईटी -200 पीएलसी | सेट | 1 | ||||
5 | पलटनेवाला | ||||||
① | WS मशीन इन्वर्टर | सेट | 3 | ||||
② | कैंची दृष्टिकोण रोलर इनवर्टर पावर: 4KW | सेट | 3 | ||||


व्यक्ति से संपर्क करें: Mr. Roni
दूरभाष: 13825096163
फैक्स: 86-10-7777777
कुल मिलाकर रेटिंग
रेटिंग स्नैपशॉट
निम्नलिखित सभी रेटिंग का वितरण हैसभी समीक्षाएँ