|
รายละเอียดสินค้า:
การชำระเงิน:
|
| เน้น: | ตายหล่อเหล็ก |
||
|---|---|---|---|
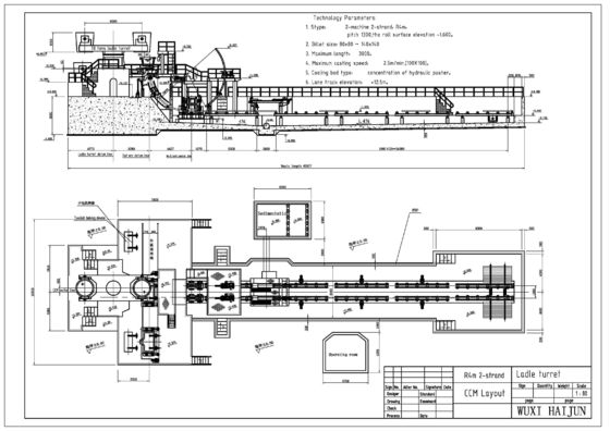
เครื่องหล่อ R4M เหล็ก
ป้อมปืนทัพพีรถทัพพีม้าทัพพี
รัศมี: R4M
จำนวน Strand: 2 เส้น
ที่มีการรับรองมาตรฐาน ISO
การออกแบบที่ทันสมัย
รายละเอียด:
1. พื้นฐานพารามิเตอร์ทางเทคนิคสแตนด์บาย:
เหล็กเหล็กแท่งเครื่องหล่อรัศมี | 4m |
ปริมาณ Strand | 2 เส้น |
ประเภทการสนับสนุนทัพพี | ป้อมปืนทัพพีรถทัพพีม้าทัพพี |
สายการบิน Tundish | กึ่งพอร์ทัลฟังก์ชั่นการเลื่อนข้าม |
วิธีการหล่อ | วัดแสงหัวฉีดเปิดหล่อ |
ระบายความร้อนรอง | น้ำเย็น 1 ปรับวงจร |
ถอนเครื่องยืด | ทั้งหมด 5 ลูกกลิ้งยืดก้าวหน้า |
ตารางม้วน | ไดรฟ์กลุ่มเชนส่วนกลาง |
บาร์ dummy | เข้มงวดกับตัวเองปรับตัวหัวหุ่นบาร์ |
ตัดเหล็กแท่ง | ตัดคู่มือการใช้งาน |
ลำเลียงเหล็กแท่ง | กลุ่มส่วนกลางตารางลูกกลิ้งสด |
คูลลิ่งประเภทของธนาคาร | เตียงระบายความร้อนง่าย |
2 คำอธิบายกระบวนการทางเทคนิคและความจุของเหล็กเหล็กแท่ง CCM
เตาเหนี่ยวนำ:
ความจุระบุ | 15T |
แตะเพื่อแตะวงจร | 60 นาที |
ปริมาณเตา | 2 ติดตั้ง |
กำลังการผลิต
วันทำงาน | 330 วัน / ปี |
ค่าเฉลี่ยของจำนวนเตาทุกวัน | 24 / วัน |
กำลังการผลิต | 100,000t / ปี |
3. ความเร็วในการหล่อการผลิตและปริมาณสาระ
R4m เครื่องรัศมีหล่อสามารถส่งกลุ่มเหล็กของข้อกำหนดที่แตกต่างกันความเร็วสูงสุดชี้ขาดจะเป็นดังนี้:
หล่อพื้นที่หน้าตัด (mm) | 80 × 80 | 100 × 100 | 120 × 120 |
ความเร็วในการหล่อ (เมตร / นาที) | 3.0 | 2.8 | 2.6 |
NO | กระดาษชิ้นเล็ก ขนาด | ความเร็วในการหล่อ | การส่งออกรายชั่วโมง (ตัน) | ผลผลิตประจำวัน 24 ช (ตัน) | ผลผลิตประจำปี (330days) (ตัน) |
1 | 80 × 80 | 3.0m / นาที | 7.42 | 178 | 58766 |
2 | 100 × 100 | 2.8m / นาที | 10.81 | 259 | 85615 |
3 | 120 × 120 | 2.6M / นาที | 15.69 | 377 | 124,266 |
ผลการคำนวณเป็นรัฐในอุดมคติของการผลิตโปรดตามสถานการณ์ที่เกิดขึ้นจริงของการปรับตัวของตัวเอง
เหล็กเกรด | เกรดหล่อ (เมตร / นาที) | อัตราความผิดปกติที่มีประสิทธิภาพ (ε) | อัตราการเสียรูปที่อนุญาต (εสูงสุด) |
เหล็กกล้าคาร์บอนตรง | 1.8 ~ 2.5 | โปรดดูตารางคำนวณ | 0.25 |
โลหะผสมเหล็กต่ำ | 1.3 ~ 2.0 | โปรดดูตารางคำนวณ | 0.15 ~ 0.2 |
4. CCM รายการชิ้นส่วนอุปกรณ์
เลขที่ | ชื่อเครื่อง | น้ำหนัก | หน่วย | ปริมาณ | |
ⅰ | ร่างกายอุปกรณ์ | ||||
1 | รถทัพพี | 5T × 2 = 10T | ชุด | 2 | |
2 | สายการบิน Tundish | 2T × 2 = 4T | ชุด | 2 | |
3 | Tundish | 1.4T × 2 = 2.8T | PEC | 2 | |
4 | แม่พิมพ์ 100 × 100 | 0.53 × 2 = 1.06T | ชุด | 2 | |
5 | ลูกกลิ้งแม่พิมพ์ | 0.01 × 2 = 0.02T | ชุด | 2 | |
6 | ปกแม่พิมพ์ | 0.1T × 2 = 0.2T | ชุด | 2 | |
7 | oscillator แม่พิมพ์ | 1.5T × 2 = 3T | ชุด | 2 | |
8 | ท่อระบายความร้อนสเปรย์รอง | 0.5T × 2 = 1T | ชุด | 2 | |
9 | คู่มือการระบายความร้อนส่วนหนึ่งรองม้วน | 0.5T × 2 = 1T | ชุด | 2 | |
10 | รองลงน้ำระบายความร้อนระบบอบไอน้ำท่อระบายน้ำ | 1.1T | ชุด | 1 | |
11 | ถอนตัวและเครื่องยืด | 6T × 2 = 12T | ชุด | 2 | |
12 | บาร์ dummy | 0.9T × 2 = 1.8T | ชุด | 2 | |
13 | อุปกรณ์จัดเก็บข้อมูลบาร์ Dummy | 0.7T × 2 = 1.4T | ชุด | 2 | |
14 | ตารางม้วนก่อนที่จะตัด | 1.5T × 2 = 3T | ชุด | 2 | |
15 | เตียงระบายความร้อนง่าย | 1.2T | ชุด | 1 | |
16 | หัว Billet และตัดระบบการจัดเก็บตะกรัน | 0.5T | ชุด | 1 | |
17 | ถนนม้วน | 1.5T × 2 = 3T | ชุด | 2 | |
18 | Billet ออกไปลูกกลิ้ง | 1.5 × 2 = 3T | ชุด | 3 | |
19 | เหล็กเครื่องข้างผลัดเปลี่ยน | 3T | ชุด | 1 | |
20 | เครื่องตัดเปลวไฟ | 1T × 2 = 2T | ชุด | 2 | |
21 | ระบบไฮดรอลิสถานี | 1.6T | ชุด | 1 | |
22 | สถานีน้ำเย็น | 1.6T | ชุด | 1 | |
23 | แพลตฟอร์มเหล็ก | 45T | 1 | ||
ⅱ | สามระบบไฟฟ้า | ||||
1 | อุปกรณ์ควบคุมไฟฟ้า | ชุด | 1 | ||
2 | เมตรที่เกิดเหตุ | ชุด | 1 | ||
3 | ระบบคอมพิวเตอร์ | ชุด | 1 | ||
ⅲ | การติดตั้งวัสดุ | ||||
1 | วัสดุที่ใช้ในการติดตั้งระบบไฟฟ้าระบบ | 1T | ตั้งค่า | 1 | |
2 | วัสดุระบบท่อไฮโดรลิค | 1T | ตั้งค่า | 1 | |
3 | คูลลิ่งวัสดุระบบน้ำ | 1T | ตั้งค่า | 1 | |
ⅳ | อุปกรณ์ออฟไลน์ | ||||
1 | repairtable แม่พิมพ์ | ตั้งค่า | 1 | ||
2 | ยืนสนับสนุนแม่พิมพ์ | ตั้งค่า | 1 | ||
3 | คู่แม่แบบโค้ง | คู่ | 2 | ||

ผู้ติดต่อ: Mr. Roni
โทร: 13825096163
แฟกซ์: 86-10-7777777
คะแนนโดยรวม
ภาพรวมการให้คะแนน
ต่อไปนี้คือการกระจายของเรตติ้งทั้งหมดรีวิวทั้งหมด